| 価格 | 2,900万円 ![]() |
||||
|---|---|---|---|---|---|
| 所在地 | 京都府京都市右京区山ノ内荒木町
この地域周辺の物件を見る |
土地面積 | 80.72m² (24.41坪) | 坪単価 | 118.77万円 /坪 |
| 交通 |
京都地下鉄東西線 太秦天神川 徒歩9分
京福電気鉄道嵐山本線 山ノ内 徒歩7分 |
建ぺい率 | 60 % | 容積率 | 200 % |
| 特徴 |
|
|---|---|
| セールスコメント | ◆土地価格2900万円/建物価格1899万円 |
| 建築条件 | 建築条件付 | 土地権利 | 所有権 |
|---|---|---|---|
| 現況/引渡し | 更地/相談 | 接道状況 | 接道: 西 8.84m 公道 道路幅: 2.79m 接道: 北 8.63m 私道 道路幅: 3.38m |
| 私道負担面積 | あり 7.88m² | セットバック | - |
| 地勢 | 地目 | 宅地 | |
| 用途地域 | 準工業地域 | 都市計画 | 市街化区域 |
| 法令上の制限 | 準防火地域 | 国土法届出 | 不要 |
| 取引態様 | 仲介 | ||
| 情報更新日 | 2026年04月28日 | 次回更新日 | 2026年05月12日 |
| 小学校区 | () |
中学校区 | () |
|---|
| 価格 | 万円 | ||
|---|---|---|---|
| 年利率 | % |
||
| ボーナス払い | 返済年数 | ||
| 頭金 | 直接入力する | 万円 | |

毎月のご返済額 |
ボーナス(×年2回) |
物件価格2,900万円 |
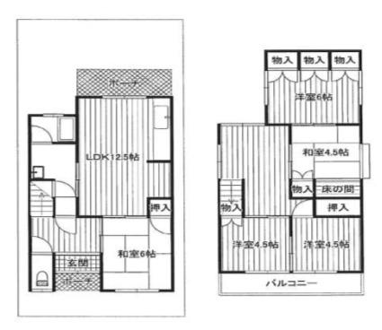
■建築条件付売土地■建物プラン例有♪
■角地■地下鉄「太秦天神川」駅 徒歩9分