京都市西京区大原野西竹の里町1丁目の分譲住宅一覧|京都市の不動産のことならセンチュリー21京都ハウス

TOPページ >
物件検索 >
分譲住宅特集一覧 >
京都市西京区大原野西竹の里町1丁目の分譲住宅特集一覧
2件中1〜2件を表示
  • 1

会員様限定で公開中!

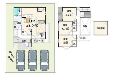
新築一戸建て
価格 5,229万円 
所在地 京都市西京区大原野西竹の里町1丁目
交通 阪急京都本線 洛西口駅 バス14分停歩3分
建物面積 99.14m2 土地面積 175.01m2

■土地約52坪■市バス「西竹の里町」停 徒歩3分■前道広々約6m ■駐車3台可■全居室6帖以上■ロフト付き

2件中1〜2件を表示
  • 1

PAGE TOP

センチュリー21の加盟店は、全て独立・自営です。
Copyright(c)Kyotohouse Co,.Ltd. All Rights Reserved.