| 価格 | 5,229万円 ![]() |
||||
|---|---|---|---|---|---|
| 所在地 | 京都府京都市西京区大原野西竹の里町1丁目
この地域周辺の物件を見る |
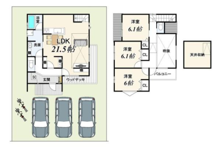
土地面積 | 175.01m² (52.94坪) | 建物面積 | 99.14m2 |
| 築年月 | 2026年9月築 | 間取り | 3LDK (-) | ||
| 交通 |
阪急京都本線 洛西口 バス14分 西竹の里町 停歩3分
|
||||
| 特徴 |
|
|---|---|
| セールスコメント | ※外構費160万円別途要(全て税込み) |
| 採光面 | 西 | 構造/階数 | 木造/地上2階建 |
|---|---|---|---|
| 建ぺい率 | 50(%) | 容積率 | 80(%) |
| 駐車場 | 有 | 現況/引渡し | 建築中/相談 |
| 土地権利 | 所有権 | 私道負担面積 | - |
| 接道状況 | 接道: 西 11.07m 公道 道路幅: 6m | 用途地域 |
第一種低層住居専用地域
|
| セットバック | - | 法令上の制限 | - |
| 地目 | 宅地 | 地勢 | |
| 建築確認番号 | 第R06確認建築IPEC00684号 | 都市計画 | 市街化区域 |
| 取引態様 | 仲介 | ||
| 情報更新日 | 2026年05月26日 | 次回更新日 | 2026年06月09日 |
| 小学校区 | () |
中学校区 | () |
|---|
| 価格 | 万円 | ||
|---|---|---|---|
| 年利率 | % |
||
| ボーナス払い | 返済年数 | ||
| 頭金 | 直接入力する | 万円 | |

毎月のご返済額 |
ボーナス(×年2回) |
物件価格5,229万円 |
![]() |
![]() |
京都市西京区大原野西竹の里町1丁目
5229万円〜5389万円 |
■土地約52坪■市バス「西竹の里町」停 徒歩3分■前道広々約6m
■駐車3台可■全居室6帖以上■ロフト付き