| 価格 | 4,380万円 ![]() |
||||
|---|---|---|---|---|---|
| 所在地 | 京都府京都市伏見区舞台町
この地域周辺の物件を見る |
専有面積 | 101.56m2 | 築年月 | 2003年11月築 |
| 交通 |
京阪本線 丹波橋 徒歩14分
近鉄京都線 伏見 徒歩14分 近鉄京都線 近鉄丹波橋 徒歩15分 |
管理費等 | 14,320円 | 修繕積立金 | 26,910円 | 所在階/階数 | 1階/地上7階建 | バルコニー面積 | 3.64m² |
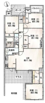
| 間取り | 4LDK (-) | ||||
| 特徴 |
|
|---|---|
| セールスコメント |
| 採光面 | 南 | 取引態様 | 仲介 |
|---|---|---|---|
| 現況 | 空室 | 引渡し | 相談 |
| 総戸数 | 50戸 | 構造 | RC造 |
| テラス面積 | - | 専用庭面積 | - |
| 駐車場 | 空無 | 駐輪場 | - |
| 建物権利 | - | 土地権利 | 所有権 |
| 用途地域 | 準工業地域 - - | 管理態様 | 管理形態:日勤 管理組合:なし 管理会社:(株)カシワバラデイズ |
| 小学校区 | 伏見住吉小学校 | 中学校区 | 伏見中学校 |
| 情報更新日 | 2026年05月11日 | 次回更新日 | 2026年05月25日 |
| 小学校区 | () |
中学校区 | () |
|---|
| 価格 | 万円 | ||
|---|---|---|---|
| 年利率 | % |
||
| ボーナス払い | 返済年数 | ||
| 頭金 | 直接入力する | 万円 | |

毎月のご返済額 |
ボーナス(×年2回) |
物件価格4,380万円 |
■角住戸■令和7年フルリフォーム済■京阪本線「丹波橋」駅 徒歩14分
■アフターサービス保証付き